高安路现代装饰艺术风格(Art Deco)花园洋房,外立面采用浅黄色水刷石及水泥压毛工艺搭配黑色老钢窗,利落的几何斩假石线条勾勒轮廓,成为街区内兼具历史感与现代感的 “风景坐标”。
【沿街】独栋·老洋房
高安路·衡山路·自带车库
里面目前毛坯,一本产证,个人产权,地价已补!高安一小书包~
高安路沿街独栋
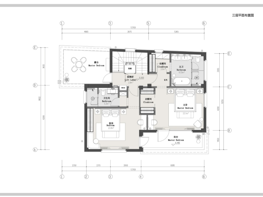
建筑面积
337㎡建筑风格
现代主义房型
独栋老洋房物况
毛坯楼层
独栋售价
1.39亿地址
高安路衡山路